全自动过滤器
全自动过滤器
一、什么是全自动过滤器
全自动过滤器只是过滤器的一个阐述词,不能更准确的去判断他的结构和形式。确切的说只要全自动过滤器是不够严谨的,那么为什么呢?首先我们要看下全自动过滤器的分类。

二、全自动过滤器的分类
全自动过滤器可分为:全自动自清洗过滤器,全自动反冲洗过滤器、多芯式全自动反冲洗过滤器、全自动反冲洗石英砂过滤器等等。这些过滤器都可以称为全自动过滤器。那么对于过滤器怎样选型呢?
三、全自动过滤器选型
1. 流量2.精度3压力4过滤面积要求5过滤介质6占地面积7链接方式8外形要求
四、多芯式全自动反冲洗过滤器
多芯式全自动反冲洗过滤器也可以叫做多柱式全自动反冲洗过滤器,主要滤芯可以用,烧结网滤芯,烧结毡滤芯,楔形网滤芯,复合烧结滤芯,以及金属网滤芯,粉末烧结滤芯等,由于多芯式反冲洗过滤器使用广泛,能给满足不同条件下的工况使用,下面主要讲一下一些使用方法和注意事项。
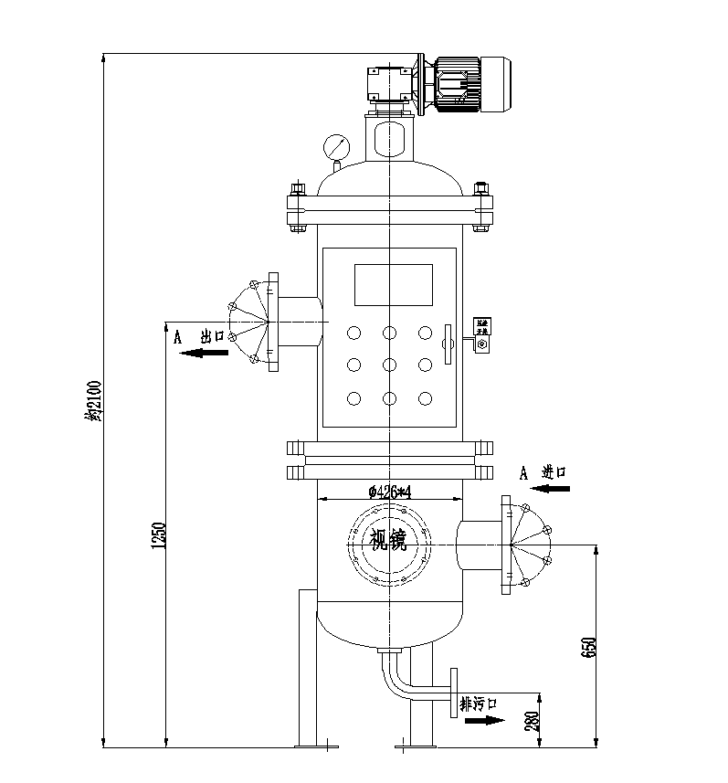
五、外形图

按照外形图将电机(参考实物尺寸),减速机及阀门等配件安装在设备上。
六、控制面板

七、技术参数
设计口径:DN50-DN500
工作压力:0.4MPa-2.5mpa
最高工作温度:-10℃-100℃
过滤精度:1um-100um
控制方式:压差+时间、时间、手动
清洗时间:40-60秒
清洗模式:多滤芯启停式
额定电压:380V 50HZ
九、操作步骤
1、按控制箱内部接线指示或按接线图接好进线电缆(380V四线)
2、扭动钥匙开关,合上总开关,把电源接通。把自动|停|手动旋钮调到手动位置,按启动,观察一下减速机的旋转方向(380V时);是否与标识一致,如果接线后反转,请把进线电缆调整一下(380V时)。测试阀门能否正常启闭。
3、调试好以后,可以进入正常使用状态。
4、可以根据实际情况需要调整清洗时间、排污时间(如有配备)。
5、时间间隔和运行时间调整(如有配备)
6、阀门限位功能:阀门开到位置、阀门关到位置;提示阀门是否开、关到位置的信号反馈,如不需接此功能(或阀门开、关不到位引起的故障),可以短接(如有配备)
时间调整说明:
反冲洗间隔时间是时间控制时两段清洗之间的时间间隔;
单滤芯冲洗时间:单个滤芯的反冲洗清洗时间,根据实际情况调整;
滤芯数量:是设备装配滤芯数量,可根据实际情况填写(数量+1),当数字>滤芯数量时,滤芯处于反复冲洗状态;
排污阀开关超时:排污阀完全打开的时间反馈信号,设定需要>实际阀门开启时间,建议40秒(阀门完全打开约25秒)(如有配备);
7、自动运行
按实际情况,调整需要的时间程序;压差模式时,时间间隔需要加长;时间模式时,按实际设定时间程序。
接通电源以后把自动手动旋钮调到自动位置,即进入全自动运行状态。全自动运行中不需要人工干预,可以根据滤网内外压差及时间间隔来开启清洗。
时间控制:当到达设定的时间间隔时,设备自动运行;运行时间结束后,设备自动停止,进入下一循环;调整说明见(第6条)。
压差控制:本系统默认为压差模式+时间控制;压差控制时,压差默认值为50Kpa(可设置0-200Kpa);当设备压差到达50kpa时设备自动启动,清洗,排污;当压差降下来时,设备停止运转到下一循环。如需调整,在压差控制器右侧有一螺丝,通过旋转螺丝来调整压差变化(调试参考范围,打开压差开关上盖,见标识;顺时针增加,逆时针减小)。
设备调整时,需请严格按照调整说明执行。
压差控制说明:压差控制附带时间控制,时间间隔设定可以长一点;系统默认按照设定压差进行清洗,由时间参与运行是预防未发现压差故障,引起滤芯堵塞,造成设备损坏。
六、故障及排查方法
故障 | 排除方法 | |
漏水 | 连接面漏水,渗水 | 紧固相应螺栓 |
传动轴位置渗水 | 密封圈磨损,更换 | |
排污异常 | 检查电动阀是否正常 | 更换 |
压差控制器是否正常 | 更换 | |
电机是否运转 | 更换 | |
减速机与连轴器间键是否松动 | 更换 | |
系统停转 | 检查电源 电机 减速机 | 更换 |
以上主要围绕全自动过滤器中的全自动多柱式过滤器展开讲解,其中包含了全自动过滤器的分类、选型、以及多柱式反冲洗过滤器的具体使用方法和设计参数。我司生产的多柱式方冲洗过滤器可以跟进客户的要求设计,包括滤材、流量、精度等方面,能够为客户真正的排忧解难,选择PA集团就是选择放心。